

Investor Special: Build, Flip, or Hold for Long-Term Gains
Seize a rare opportunity to build equity and maximize returns with this versatile investment property. Whether your strategy is to build and flip for immediate profit or hold long-term for rental income, this property offers the flexibility and fundamentals that make it a smart addition to any portfolio. Engineered to withstand Category 5 hurricanes, these homes set a new standard in durability and safety.





Construction Timeline: Streamlined for Speed & Quality
Permitting Process:
-
Septic Permit: ~10 weeks.
-
Building Permit: ~2 weeks following septic approval.
Simultaneous Construction:
-
Container modifications commence immediately after closing.
-
Horizontal infrastructure (utilities, foundation) develops in tandem.
Total Timeline:
-
Just 5-6 months, from permitting to completion.
Designed with Precision:
-
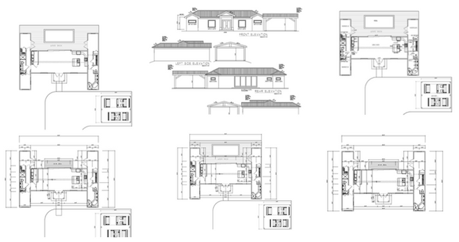
Total Living Area: 1,280 sq. ft. of air-conditioned comfort.
-
Efficient Layouts: Smart designs maximize functionality and aesthetics within every square foot.



TOTAL LIVING AREA 1,280 SQ FT

Pricing Structure: Affordable Elegance

Base Price:
$245,000 Including lot.

Financing Available


Flexible Payment Plans:
40% Upfront for Initial Modifications.
30% During Construction.
25% Nearing Completion.
5% Upon Completion.


Interior Features: Style Meets Practicality
Kitchens
Granite countertops, shiplap-inspired designs, and modern appliances.
Bathrooms
Sleek finishes and durable materials for a spa-like experience.
Flooring
Tile flooring, perfect for durability and ease of maintenance.
Finishes
Thoughtfully selected baseboards, trims, and white-painted walls for a timeless aesthetic.


Location

Warranties & Financing: Peace of Mind Guaranteed
Home Warranty
-
1-year coverage for structural elements.
Appliance Warranty
-
Standard manufacturer-backed assurance.
Financing
-
Compatible with FHA and conventional loans.
-
Builder collaboration with lenders ensures smooth approvals.
-
Assistance with down payment contributions for eligible buyers




BRAD COZZA
FOUNDER/BROKER
Brad is the owner and founder of an investment real estate firm, Cozza Investment Group, headquartered in Fort Myers, FL. Cozza Investment Group (Cozza Realty Group Inc) was recently ranked number ten in the nation by the Wall Street Journal for the largest volume produced in the United States at the young age of 27 by selling over 350 million dollars’ worth of closed sales.
Starting his career as an agent for Keller Williams with a business management degree from Florida Gulf Coast University, Cozza identified his niche of working the investment side of residential real estate. During the real estate boom, Cozza specialized in preconstruction investment opportunities and first phase development projects. Cozza was the top producer for pre-construction single family homes sold in SW Florida. Cozza also was a real estate investment educational speaker that has spoken alongside the likes of Donald Trump, Robert Kiyosaki, and Barbara Cochran.
As the market’s environment changed in 2008, Cozza changed with it with; directing his capital to acquire foreclosures in SW Florida. A wide array of acquisition methods were used to acquire short sales, REO’s, auction properties, etc. The model is a simple acquisition, renovation, disposition model with a diversified exit strategy approach to sell properties retail to end users, domestic investors, and international investors. Over 1,400 properties were acquired and successfully sold since the inception of the foreclosure crisis.
Recently, Cozza has repositioned his focus to preconstruction to take advantage of the booming Florida market post-COVID. With over 650 properties and 250 million dollars of closed volume since 2021, preconstruction in diversified areas of Florida will be the focus while the market conditions remain favorable and profitable.
ABOUT THE BROKER

Ready to Take the Next Step?
Our team is here to answer your questions, guide you through the process, and help you secure your new home or investment opportunity.
Phone:
Anthony Tiljak: (239) 285-0020
Email:
Address:
Fort Myers Office: 13379 McGregor Blvd, Fort Myers, Florida 33919
Miami Office: 7334 SW 48th Street, Miami, Florida 33155

